Three thumbs up after the accomplishment of this project in late February 2013. The finalisation of the office interior design was rather challenging due to the demand, nonetheless we were credited for delivering a job well done. Let's take a look of this trendy office.
The office preferred yellow and having the colour as majority at the office would rather seems awkward and dull indeed. So, we only use yellow at specific objects in a specific area. To further illustrates when visitors or people walked in, will have the first glance at the "yellow" object at each section of the office. Hence from the glance at the "yellow" objects will immediately captured their attention of knowing what is the section is all about.
Then, to have equal balance of prestige and trends, we brought in custom made comfortable "yellow" sofa (i.e. intent to highlight the waiting area) and twin marble table for better looks . Under combination of flooring tiles and carpet is ideal to portrayed classy corporate image. For further classy impression, we have designs at the mirror wall behind the reception, adding to the taste the wooden board is for the company logo.
There is a walkway after the reception where you will either came across the multi purpose (MP) room and the pantry. We actually designed the (MP) room with wall paper picturing a classic phone at one side of the wall with nice chandelier to bring back the 80's atmosphere. Whilst at the pantry, we created a great ceiling design under the black and white concept with good lighting to improve the overall good impression.
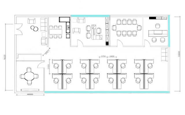
At the workstation, we emphasise on private spacing. Under our customer caring thoughts had given us better budget to move in "healthy furniture" capable of ensuring sufficient physical and mental comfort. Realistically, under such comfort results good productivity. Through lots of reading and research on the net, we placed "a sofa behind the bright yellow wall" concept to really helps to create harmonious home in the office, as good as 2nd home environment.
+(A).jpg)
The directors room, plenty of efforts given to design the place to satisfy their likings, for comfort and being a favourite room in their life. Nevertheless, the meeting room is actually connected to a managing director room or it can be separated giving an option to the user.
The whole office is a great finishing. An experience we never forget. Do you want to have your own ideal office? We can do it for you. Contact us at protouchservices4u@yahoo.com. We'll see you next time. Thank you.
+(A).jpg)
.jpg)
+(A).jpg)
+(A).jpg)
.jpg)
No comments:
Post a Comment